中古マンション
徒歩5分以内
藤和大手前コープ
- 価格
-
1,830万円
返済例月々-円
- 面積
-
建物面積:
58.46㎡
土地面積:
-㎡ - 間取り
- 1LDK
藤和大手前コープの物件写真
- スタッフのおすすめPOINT!
【藤和大手前コープ】「天満橋」駅徒歩1分
大阪メトロ谷町線「天満橋」駅徒歩1分
▶所有者によるリースバック(事務所使用)
▶オーナーチェンジ物件 ▶賃貸需要の高いエリアです!お引渡し後すぐに賃料が受け取れます。▶現状の条件 ●月額賃料:138,000円 ●年間収入:1,656,000円 ●表面利回り:9.04%
物件担当の
突沖 佳佑です
- 天満橋駅徒歩圏で便利
- 中大江小学校区内のマンション
- 東中学校区内のマンション
- お買い物に便利なマンション
- 公園が近くあります
- コンビニが近くにあります
- 飲食店が近くにあります
- オーナーチェンジ物件
- 鉄骨鉄筋コンクリート造マンション
藤和大手前コープのアクセスマップ
藤和大手前コープの物件概要
| 物件番号 | 6247 |
|---|---|
| 建物名 | 藤和大手前コープ |
| 住所 | 大阪市中央区谷町1丁目3-23 |
| 最寄駅 | 大阪メトロ谷町線 天満橋駅 徒歩1分 |
| 表面利回り | 9.04% |
| 月額賃料 | 138,000円 |
| 年間収入 | 1,656,000円 |
| 小学校区 | 大阪市立中大江小学校区 |
| 中学校区 | 大阪市立東中学校区 |
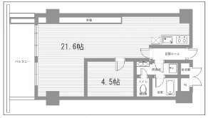
| 間取 | 1LDK |
| 管理会社 | 長谷工コミュニティ |
| 管理費 | 14200円 |
| 修繕積立金 | 15100円 |
| 管理形態 | 管理会社に全部委託 |
| 管理人状況 | 日勤 |
| 土地権利 | 所有権 |
| 用途地域 | 商業地域 |
| 建物面積 | 58.46㎡ 内法 |
| 主要採光面(向き) | 西 |
| 所在階 | 5階 |
| 総戸数 | 58戸 |
| 築年月日 | 1977年06月 |
| 構造 | SRC(鉄骨鉄筋コンクリート) 13階建 |
| 設備 | 水道/公営 排水/下水 バス/専用 トイレ/専用 |
| 現況 | 賃貸中 |
| 引渡 | 相談 |
| 取引態様 | 仲介 |
| 物件登録日/価格 | 2025/11/14 2,030万円 |
| 価格更新日/価格 | 2026/02/11 1,830万円 |
| 情報更新日 | 2026/02/11 |
| 次回更新予定日 | 2026/03/13 |
藤和大手前コープのローンシミュレーション
住宅ローンもおまかせください!
現在の店頭基準金利は2.625%当社おすすめの
住宅ローンなら
借入額1830万円(税込) 金利% 年ローン
- 毎月の返済額
- 円
頭金0円でボーナス払いなしの場合の金額です。
また、お客様のご条件により金利の優遇幅が変動する場合があります。
返済例は全額ローン(ボーナス返済0円)、元利金等支払、借入期間35年、変動金利(金利優遇適用後)の0.5%にて計算(現在2026年03月適用)
住宅ローンシミュレーターを用いて算出したものであり、実際の借り入れ事例を示すものではなく、また、実際の支払い金額と若干計算結果が異なる場合があります。金利優遇にはいくつかの条件がございます。条件等により優遇が適用されない場合もございます。上記金利は、優遇金利を確約するものではありません。また、お借り入れの際は、銀行事務手数料等別途諸費用が発生する場合がございます。詳細につきましては上記金融機関公式サイト、もしくは弊社住宅ローンアドバイザーにご相談ください。




