ニューライフ平野町
- 価格
-
1,380万円
返済例月々-円
- 面積
-
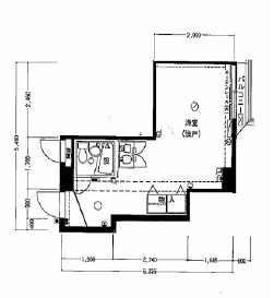
建物面積:
23.06㎡
土地面積:
-㎡ - 間取り
- 1R
ニューライフ平野町の物件写真
- スタッフのおすすめPOINT!
【ニューライフ平野町】「淀屋橋」駅徒歩4分
大阪メトロ御堂筋線「淀屋橋」駅徒歩4分
大阪メトロ御堂筋線「本町」駅徒歩6分
▶2線2駅利用可能で好アクセス
▶通勤、通学、お買物全て徒歩圏内に揃う生活至便良好な立地です。
▶11階建て8階部分
▶事務所として利用可能
▶フルリノベーション物件!
▶賃貸需要の高いエリアです!現在空室につき自己使用、収益物件いずれも検討の価値あり。
物件担当の
突沖 佳佑です
- 淀屋橋駅徒歩圏で便利
- 本町駅徒歩圏で便利
- お買い物に便利なマンション
- コンビニが近くにあります
- 飲食店が近くにあります
- キタへのアクセス良好
- ミナミへのアクセス良好
- リノベーション物件
- 事務所としても利用も可能です
ニューライフ平野町のアクセスマップ
ニューライフ平野町の物件概要
| 物件番号 | 6550 |
|---|---|
| 建物名 | ニューライフ平野町 |
| 住所 | 大阪府大阪市中央区平野町3丁目3-7 |
| 最寄駅 | 大阪メトロ御堂筋線 淀屋橋駅 徒歩4分 大阪メトロ御堂筋線 本町駅 徒歩6分 |
| 間取 | 1R |
| 分譲主 | 飛栄産業 |
| 施工会社 | 飛島建設 |
| 管理会社 | 日本ハウズイング |
| 管理費 | 5280円 |
| 修繕積立金 | 9200円 |
| 管理形態 | 管理会社に一部委託 |
| 管理人状況 | 日勤 |
| 土地権利 | 所有権 |
| 用途地域 | 商業地域 |
| 建物面積 | 23.06㎡ 壁芯 |
| バルコニー面積 | 1.41㎡ |
| 主要採光面(向き) | 東 |
| 建物規模(地上) | 11階 |
| 建物規模(地下) | 1階 |
| 所在階 | 8階 |
| 総戸数 | 125戸 |
| 築年月日 | 1983年07月 |
| 構造 | SRC(鉄骨鉄筋コンクリート) 地下1階付 11階建 |
| 設備 | 水道/公営 ガス/その他 排水/下水 バス/専用 トイレ/専用 洗濯機置場/室内 インターネット/インターネット対応 |
| 現況 | 空家 |
| 引渡 | 相談 |
| 取引態様 | 仲介 |
| 価格更新日/価格 | 2026/05/06 1,380万円 |
| 情報更新日 | 2026/05/06 |
| 次回更新予定日 | 2026/06/05 |
ニューライフ平野町のローンシミュレーション
住宅ローンもおまかせください!
現在の店頭基準金利は2.625%当社おすすめの
住宅ローンなら
借入額1380万円(税込) 金利% 年ローン
- 毎月の返済額
- 円
頭金0円でボーナス払いなしの場合の金額です。
また、お客様のご条件により金利の優遇幅が変動する場合があります。
返済例は全額ローン(ボーナス返済0円)、元利金等支払、借入期間35年、変動金利(金利優遇適用後)の0.5%にて計算(現在2026年05月適用)
住宅ローンシミュレーターを用いて算出したものであり、実際の借り入れ事例を示すものではなく、また、実際の支払い金額と若干計算結果が異なる場合があります。金利優遇にはいくつかの条件がございます。条件等により優遇が適用されない場合もございます。上記金利は、優遇金利を確約するものではありません。また、お借り入れの際は、銀行事務手数料等別途諸費用が発生する場合がございます。詳細につきましては上記金融機関公式サイト、もしくは弊社住宅ローンアドバイザーにご相談ください。




