ハイネス北浜
- 価格
-
930万円
返済例月々-円
- 面積
-
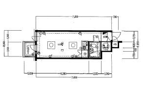
建物面積:
21.06㎡
土地面積:
-㎡ - 間取り
- 1R
ハイネス北浜の物件写真
- スタッフのおすすめPOINT!
【ハイネス北浜】「北浜」駅徒歩5分 オーナーチェンジ物件
大阪メトロ堺筋線・京阪本線「北浜」駅徒歩5分
▶通勤、通学、お買物全て徒歩圏内に揃う生活至便良好な立地です。
▶11階建て10階部分
▶オーナーチェンジ物件 ▶賃貸需要の高いエリアです!お引渡し後すぐに賃料が受け取れます。▶現状の条件 ●月額賃料:49,000円 ●年間収入:588,000円 ●表面利回り:6.32%
物件担当の
突沖 佳佑です
- 北浜駅徒歩圏で便利
- お買い物に便利なマンション
- コンビニが近くにあります
- 飲食店が近くにあります
- オーナーチェンジ物件
- 鉄骨鉄筋コンクリート造マンション
ハイネス北浜のアクセスマップ
ハイネス北浜の物件概要
| 物件番号 | 6729 |
|---|---|
| 建物名 | ハイネス北浜 |
| 住所 | 大阪府大阪市中央区平野町1丁目4-1 |
| 最寄駅 | 大阪メトロ堺筋線 北浜駅 徒歩5分 |
| 表面利回り | 6.32% |
| 月額賃料 | 49,000円 |
| 年間収入 | 588,000円 |
| 間取 | 1R |
| 分譲主 | ハイネス恒産(株) |
| 施工会社 | 西松建設 |
| 管理会社 | 日本住宅管理(株) |
| 管理費 | 7350円 |
| 修繕積立金 | 6270円 |
| 水道代 | 0円(月額) |
| 管理形態 | 管理会社に全部委託 |
| 土地権利 | 所有権 |
| 用途地域 | 商業地域 |
| 建物面積 | 21.06㎡ 壁芯 |
| バルコニー面積 | 1.80㎡ |
| 主要採光面(向き) | 西 |
| 所在階 | 10階 |
| 総戸数 | 61戸 |
| 築年月日 | 1980年05月 |
| 構造 | SRC(鉄骨鉄筋コンクリート) 11階建 |
| 設備 | 水道/公営 排水/下水 バス/専用 トイレ/専用 |
| 現況 | 賃貸中 |
| 引渡 | 相談 |
| 取引態様 | 仲介 |
| 価格更新日/価格 | 2026/04/18 930万円 |
| 情報更新日 | 2026/04/18 |
| 次回更新予定日 | 2026/05/18 |
ハイネス北浜のローンシミュレーション
住宅ローンもおまかせください!
現在の店頭基準金利は2.625%当社おすすめの
住宅ローンなら
借入額930万円(税込) 金利% 年ローン
- 毎月の返済額
- 円
頭金0円でボーナス払いなしの場合の金額です。
また、お客様のご条件により金利の優遇幅が変動する場合があります。
返済例は全額ローン(ボーナス返済0円)、元利金等支払、借入期間35年、変動金利(金利優遇適用後)の0.5%にて計算(現在2026年05月適用)
住宅ローンシミュレーターを用いて算出したものであり、実際の借り入れ事例を示すものではなく、また、実際の支払い金額と若干計算結果が異なる場合があります。金利優遇にはいくつかの条件がございます。条件等により優遇が適用されない場合もございます。上記金利は、優遇金利を確約するものではありません。また、お借り入れの際は、銀行事務手数料等別途諸費用が発生する場合がございます。詳細につきましては上記金融機関公式サイト、もしくは弊社住宅ローンアドバイザーにご相談ください。




